
T3 2 CHAMBRES 70 M² AVEC JARDIN
70 m² – 4 personnes
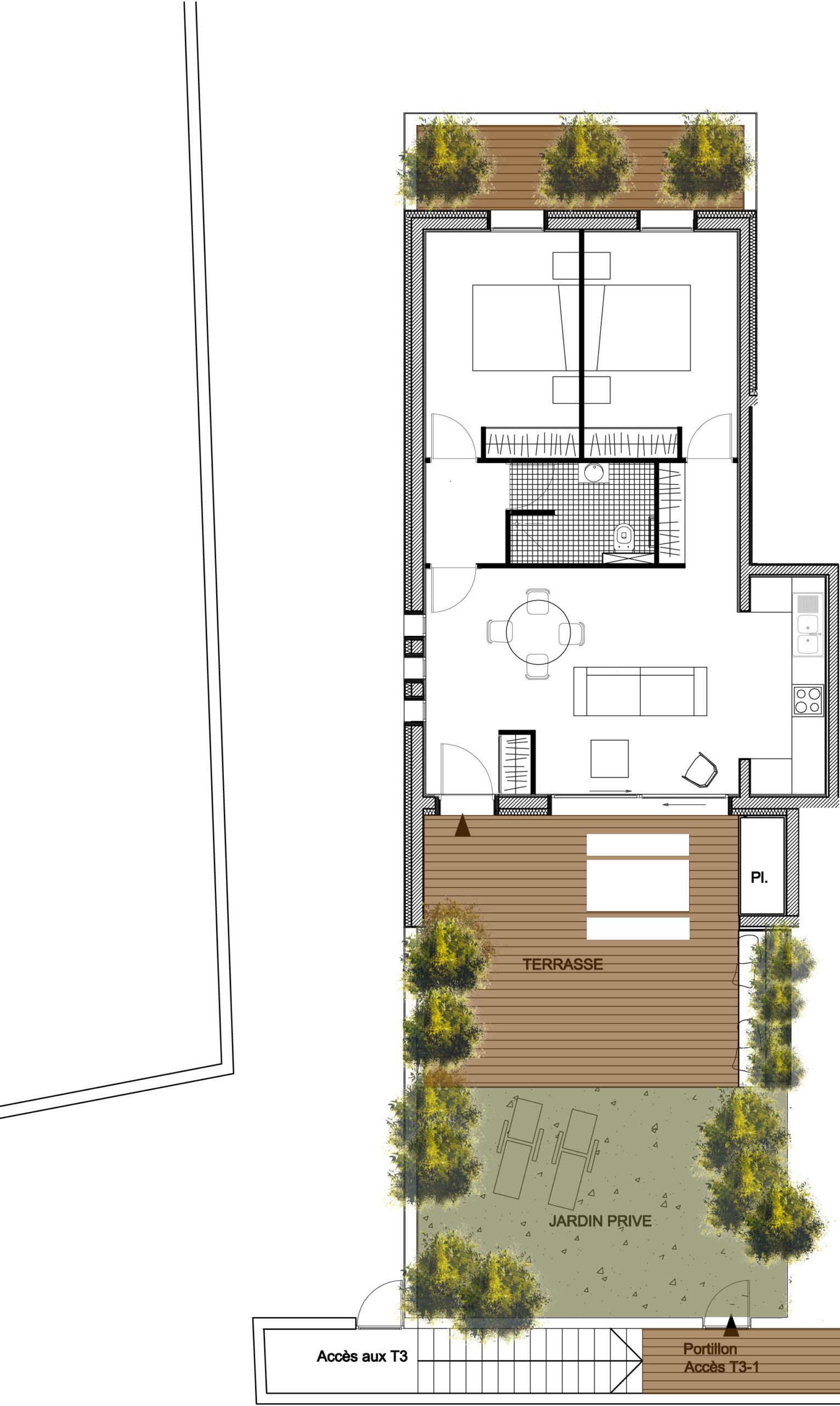
Nos appartements de type T3 disposent d’une superficie de 70 m². Ils sont confortables, lumineux et disposent chacun d’un agréable jardin. Ils sont dotés de deux chambres, d’une salle de bains et d’une cuisine entièrement équipée.
Une chambre ayant un grand lit et l’autre deux petits, ces appartements sont parfaits pour des vacances en famille. Les salles de bains claires et spacieuses sont chacune équipées d’une grande douche dans une ambiance feutrée.

T3 2 CHAMBRES 70 M² AVEC JARDIN
70 m² – 4 personnes
Nos appartements de type T3 disposent d’une superficie de 70 m². Ils sont confortables, lumineux et disposent chacun d’un agréable jardin. Ils sont dotés de deux chambres, d’une salle de bains et d’une cuisine entièrement équipée.
Une chambre ayant un grand lit et l’autre deux petits, ces appartements sont parfaits pour des vacances en famille. Les salles de bains claires et spacieuses sont chacune équipées d’une grande douche dans une ambiance feutrée.
CARACTÉRISTIQUES
- Climatisation et chauffage individuel
- 1 grand lit
- 2 petits lits
- Cuisine entièrement équipée
- 1 téléviseur
- Accès internet
- Coffre-fort
- Salon de jardin
Découvrir l’appartement en images
PLAN DE L’APPARTEMENT
CARACTÉRISTIQUES
- Climatisation et chauffage individuel
- 1 grand lit
- 2 petits lits
- Cuisine entièrement équipée
- 1 téléviseur
- Accès internet
- Coffre-fort
- Salon de jardin





















